Die Montagevarianten

01 Metallkassette
02 Kupferrohrmäander
03 Wärmeleitblech
04 Dämmschicht
05 Abhängehaken
06 Akustikauflage

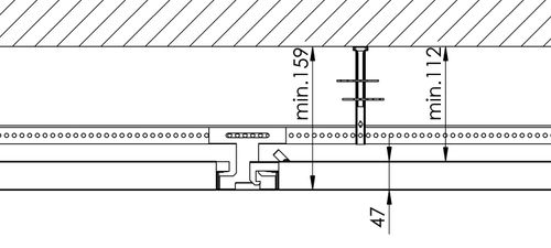
Mindestabhängehöhe bei Montage mit Primär- und Sekundärlage unter Verwendung von Rostwinkeln und Noniusabhängern. Alternativen möglich.
Strahlungswärme
Behaglichkeit
Kühlwirkung
Zugerscheinung
... erreichen wir mit der richtigen Aktivierungstechnik. Damit die Kälte oder Wärme vom übertragenden Wasserkreislauf effektiv und verlustfrei an die Deckenoberfläche gebracht wird, sind unterschiedliche Materialien und Aufbauvarianten einsetzbar:
Kupferrohre sind das Herzstück des Klimadeckenmoduls und leiten Wärme oder Kälte über passgenaue Aluminiummodule an die Sichtfläche weiter.
Mehr erfahrenEffizientes Heizen und Kühlen erfordert schnelle, verlustarme Wärmeleitung. Ein Sandwich aus Graphit und Kupfer bietet hierfür die optimale Lösung.
Mehr erfahrenTechnische Daten
- Kassette: verzinktes Stahlblech 0,7 mm
- Aktivierung: Kupfer-Aluminium
- Dämmung: Mineralwolle in LDPE-Folie
- Akustikauflage: Gipskartonplatte 12,5 mm
- Pulverbeschichtung im Farbton RAL 9016 (weitere RAL- oder NCS-Farben auf Anfrage)
- Länge (L): max. 1800 mm
- Breite (W): max. 700 mm
- Fläche: max. 1,6 m²
- Gewicht: ca. 21 kg/m² inkl. Aktivierung und Unterkonstruktion
(zusätzliche Ein- oder Aufbauten nicht eingeschlossen)
- Nenn-Kühlleistung (10K): 111 W/m² nach EN 14240
- Nenn-Wärmeleistung (15K): 121 W/m² nach EN 14237
- Bewerteter Schallabsorptionsgrad nach DIN EN ISO 354
bis zu αw = 0,75
- Betriebstemperatur: max. 50 °C
- Betriebsdruck: max. 10,5 bar
- Anschlussgröße DN 12, bauseitige Verbindung mit geeigneten, flexiblen Schläuchen
- Empfohlener Druckverlust je Heizkreis max. 30 kPa
Die Längsschall-Dämmung Dn,f,w (C) beträgt je nach
aktiv / passiv-Verhältnis der Module zwischen 48 und 54 dB.
Die Werte sind durch einen genormten Prüfbericht nach
EN ISO 10848-2:2006 nachgewiesen.
Weitere Produkte entdecken








.png)
.png)
.avif)
.png)